Έπιπλο στα Μέτρα Σου – Πακέτο Σχεδίασης
Εξατομικευμένος σχεδιασμός επίπλου με κατασκευαστικό σχέδιο
Ιδανικό για:
– Ιδιώτες που ανακαινίζουν τον χώρο τους
– Όσους θέλουν κάτι μοναδικό και λειτουργικό, που δεν βρίσκουν έτοιμο στην αγορά
Αναρωτιέσαι πώς να αποκτήσεις το ιδανικό έπιπλο για τον χώρο σου;
Είτε πρόκειται για ένα ειδικό έπιπλο εισόδου ή μια μοντέρνα σύνθεση τηλεόρασης, το πακέτο Έπιπλο στα Μέτρα Σου σου δίνει τη λύση!
Με αυτό το πακέτο θα λάβεις:
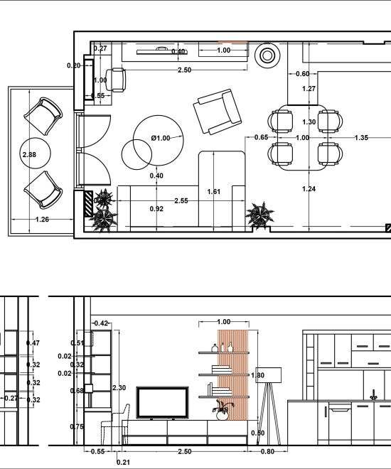
-Κατασκευαστικό σχέδιο με αναλυτικές διαστάσεις
-Προσαρμοσμένο στον χώρο και τις ανάγκες σου
-Δυνατότητα μίας αλλαγής μετά την πρώτη αποστολή
-Πρόταση εξειδικευμένου συνεργάτη για την κατασκευή (προαιρετικά)
Τι προβλήματα λύνει;
– Δεν βρίσκεις το σωστό μέγεθος/στυλ επίπλου στα καταστήματα
– Θες να αξιοποιήσεις δύσκολους χώρους (π.χ. κάτω από σκάλες, στενούς διαδρόμους)
– Θέλεις να ξέρεις ακριβώς τι να δώσεις στον μάστορα για να μην γίνουν λάθη
– Θες κάτι αισθητικά άρτιο που να ταιριάζει απόλυτα στον χώρο σου
Πώς λειτουργεί:
-
Αγόρασε το πακέτο “Custom Κατασκευή & Σχέδιο”
-
Συγκέντρωσε:
-
Τι θέλεις να σχεδιάσουμε
-
Φωτογραφίες και μετρήσεις του χώρου (αν χρειάζεται)
-
Τυχόν απορίες ή ανάγκες που θες να συζητήσουμε
-
-
Κλείσε δωρεάν online call ή στείλε email ή συμπλήρωσε τη φόρμας που θα βρεις εδώ
-
Θα σου αποστείλω το αναλυτικό κατασκευαστικό σχέδιο μέσω email
-
Εάν χρειαστείς, μπορείς να ζητήσεις μία αλλαγή ή διευκρίνιση
-
Αν θέλεις, σου προτείνω και συνεργάτη για να προχωρήσει η κατασκευή
Έχεις απορίες; Κλείσε ένα ραντεβού ή επικοινωνήστε μαζί μας
Θα ήθελες να ενημερωθείς περισσότερο σχετικά με τις υπηρεσίες του πακέτου διακόσμησης; Κλείστε ένα online ραντεβού, εντελώς δωρεάν, καλέστε μας ή στείλτε μας ένα μήνυμα.












